Start
Projekte
Wohnen
Freizeit
Arbeiten
Barrierefrei
FW-Einsatzpläne
Leistungen
Kontakt
Start
Projekte
Wohnen
Freizeit
Arbeiten
Barrierefrei
FW-Einsatzpläne
Leistungen
Kontakt
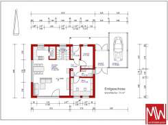
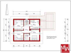
W13 // Einfamilienhaus
Bau-Vorhaben
Einfamilienhaus
Bauort
Lindberg
WFL/NFL
160 m²
BRI
800 m³
Baukosten
350.000,– EUR